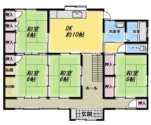
◆広々5DK・駐車場2〜3台
◆神代郵便局まで徒歩5分(400m)
◆大畠駅まで徒歩28分(2200m)





| 価格 | 400万円 | 間取り | 5DK |
|---|---|---|---|
| 所在地 | 柳井市神代 | 構造 | 木造瓦葺2階建 |
| 土地面積 | 262.98u(79.55坪) | 築年月日 | 昭和63年1月 |
| 建物面積 | 1階:96.05u 2階:28.98u 計:125.03u(37.82坪) |
駐車場 | 有(2〜3台) |
| 地目 | 宅地 | 設備 | 電気・上下水道・ガス給湯器 水洗トイレ・井戸ポンプ(動作不明) |
| 都市計画 | 区域外 | 備考 | ・土砂災害警戒区域内 |
| 用途地域 | 無指定 | 取引態様 | 仲介 |